environment
NEWS 
authorisation
飞龙体育盘口飞龙体育竞彩
King mu home
CASE
HOME
material
about us
team
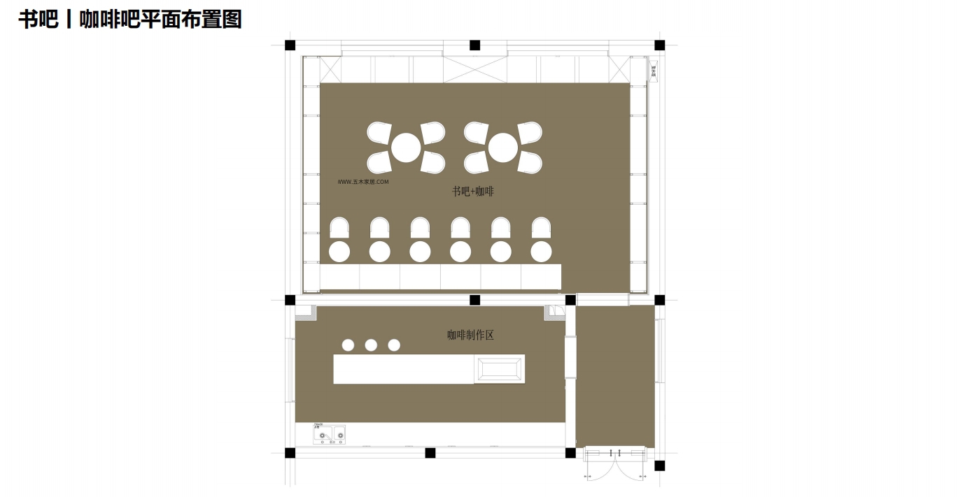
天津美家公寓
    发布时间: 2024-02-29 10:36    

天津美家公寓
占地面积4万㎡,共计850户
包含商业区,咖啡厅,书吧茶吧等
整体风格木纹素色为主,
在快节奏时代打造舒适惬意的空间。

天津美家公寓

现代简约风格即用几何线条修饰,外观简洁流畅,立面立体层次感较强,外飘窗台外挑阳台或内置阳台,合理运用色块色带处理的一种飞龙足球竞猜风格。体现了现代生活快节奏、简约和实用,但又富有朝气的生活特征,没有过分的装饰,从功能出发,讲究生活的舒适、空间结构的明确美观,强调外观的简洁、大方。
现代简约风格其着重点就在于简,即外形简洁,室内空间朴素、大方,但其功能性强。从细节上来说,即物品的摆放要整洁,装饰的物品要少,在颜色和布局上来说,颜色的种类最好不要太多,布局要大方,格调要简洁、素雅。
在如今的繁忙生活中,简洁大方的设计风格更受人们的推崇,看惯了现在生活中的繁华,与花天酒地,经过了一整天的忙碌,飞龙app游戏更想在一个安静、舒适、宽敞明亮的飞龙体育中生活,来消除视觉的疲劳,忘记都市的喧嚣,享受生活的宁静,而现代简约风格的室内飞龙足球竞猜设计满足了这一需求,现代简约风格亦是现代流行飞龙足球竞猜风格的一种。
现代简约风格的主要设计理念是简洁、舒适,没有多余的装饰,线条简单,室内空间大方。简约风格的设计不是缺乏设计要素,而是一种更高层次的设计境界。